FAR2-93-01-Elevation-F-scaled-1.jpg
Virginia | Northern Virginia | Fairfax

Valley Road Millright II

6179
Square Feet
6
Bedrooms
6.5
Bathrooms

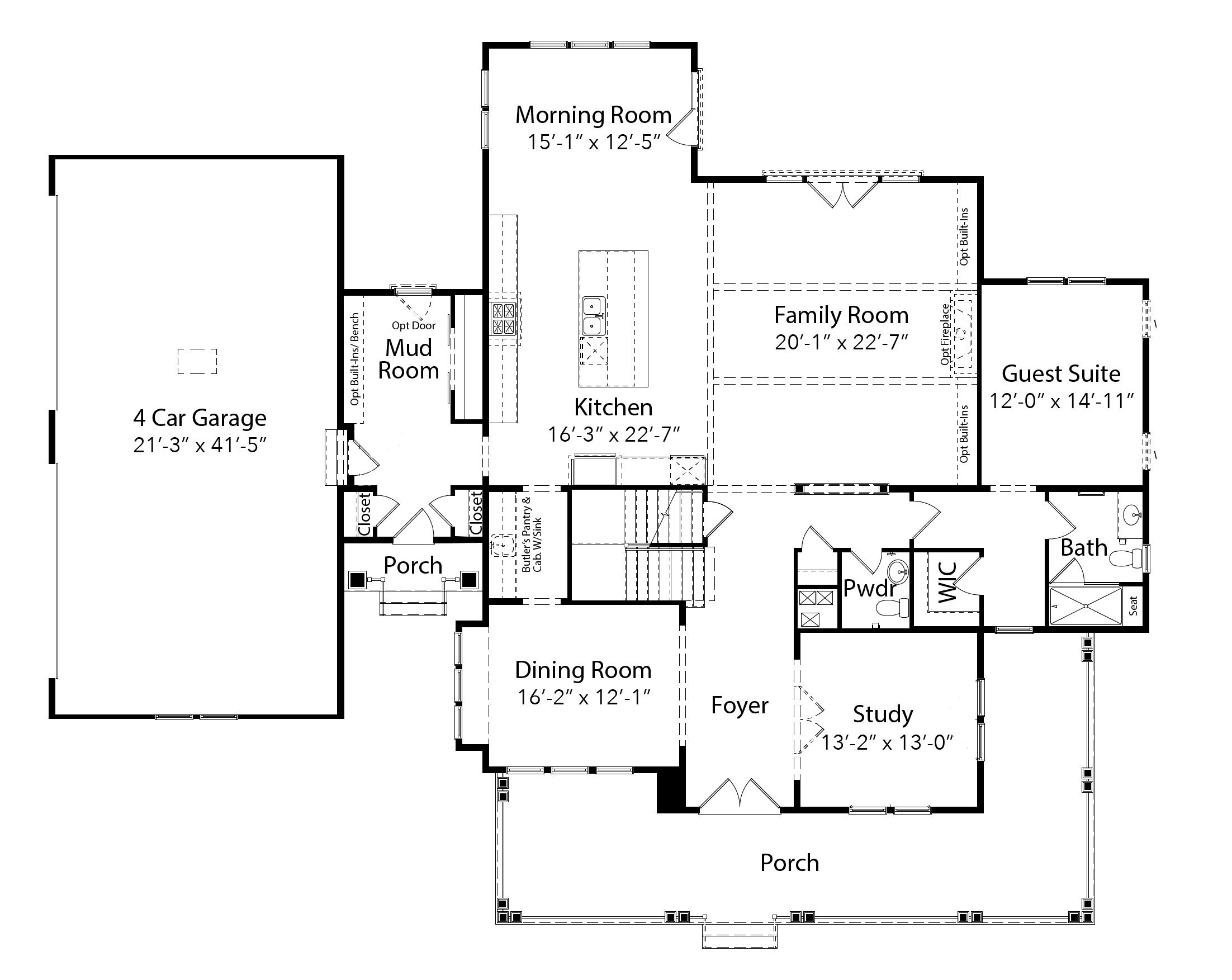
Floorplan & Features

Get a clear picture of the layout, flow, and essential features of the house.

Floorplans

GRound Level 1 2

Features

  • Square Feet:
    6179 SF
  • Bathrooms:
    6.5 BA
  • Home Type:
    single family
  • Master Bedrooms:
    upstairs

What Makes Valley Road Millright II Unique

key features location
key features

Key Features

Key Features:

  • In Progress – Available for Sale
  • Est. Delivery Date Spring 2026
  • 6 BD, 6.5 BA, 6,179 SF, 4 Car Sideload Garage
  • Estate style living on 1.72 acre property
  • 10 foot ceilings on main level
  • Designer Kitchen w/Enormous island, Quartz Countertops + GE Café Series appliances
  • Butler’s pantry w/sink + cabinets
  • Morning Room
  • Family Room w/Linear gas fireplace + decorative beams on the ceiling
  • Mud Room w/built-in cubbies
  • Main Level Guest Suite w/full bathroom
  • Main Level Study
  • Owner’s Suite w/box ceilings + over-sized walk-in closets
  • Owner’s Bathroom w/dual vanities, frameless shower + freestanding tub
  • Upper Level Laundry Room w/sink + storage
  • Loft w/additional living space
  • Finished lower level w/rec room, wet bar, exercise + media room, additional bedroom + full bathroom
  • School Pyramid: Waples Mill ES, Franklin MS, Oakton HS
  • Call our Sales Manager to learn more about our color selections and fits and finish options available!
MWright II z IO6A8644 staged ChatGPT Image Mar 2, 2026, 03_18_54 PM
location

Location

  • Located in the highly sought-after Oakton HS District.
  • Conveniently to I-66 and Route 123, and the Orange Line Metro Station for easy commuting.
  • Endless opportunities for outdoor fun at Difficult Run or the Oak Marr Rec Center.

MWright II z IO6A8792 staged ChatGPT Image Mar 2, 2026, 03_24_19 PM
shutterstock_2453940217

The Evergreene Difference

  • #01

    Home Building Experience

    A stress-free, guided process that makes building your home simple, clear, and enjoyable.
  • #02

    Team & Commitment

    A dedicated group of professionals who support you from first questions to final walkthrough. Our commitment is real, lasting, and backed by a team who cares.
  • #03

    Superior Locations & Community Design

    We build in highly desirable areas with well-planned communities that balance comfort and convenience.
  • #04

    Quality Materials & Construction

    Our homes are built with care and craftsmanship, using trusted materials that stand the test of time.
  • #05

    Energy Efficiency

    Homes consistently achieve high HERS® ratings, meaning they’re built to reduce energy use and monthly costs—while keeping comfort in every room.
  • #06

    Timeless Architecture

    A blend of classic exterior style with modern, livable interiors that adapt to your lifestyle.
  • #07

    Warranty

    Every home includes a comprehensive warranty: 1 year for materials and workmanship, 2 years for major systems, and 10 years for structural coverage—backed by PWSC and Zurich-rated protection.
evergreene-homes-38553-palatine-lovettsville-virginia-81

Step Into A Home That Fits Your Lifestyle!

Talk to us about properties that are already built and ready for you.